Bilocale in vendita

Tavagnacco, Tavagnacco Colugna - Colugna
€ 165.000
2 locali 2 locali
61 Mq 61 Mq
1 bagno 1 bagno

Bilocale in vendita

Tavagnacco, Tavagnacco Colugna - Colugna

Descrizione annuncio

Tecnocasa la più grande rete di intermediazione in Europa con 2807 punti vendita in Italia e 4022 nel mondo vi propone:

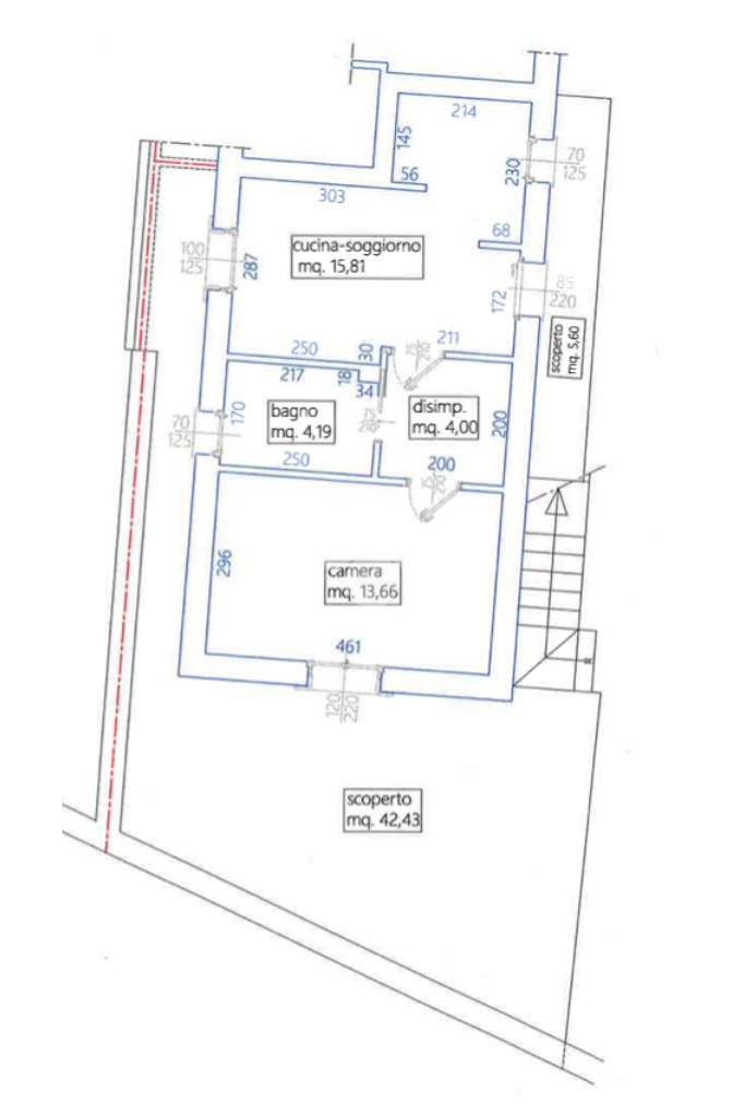
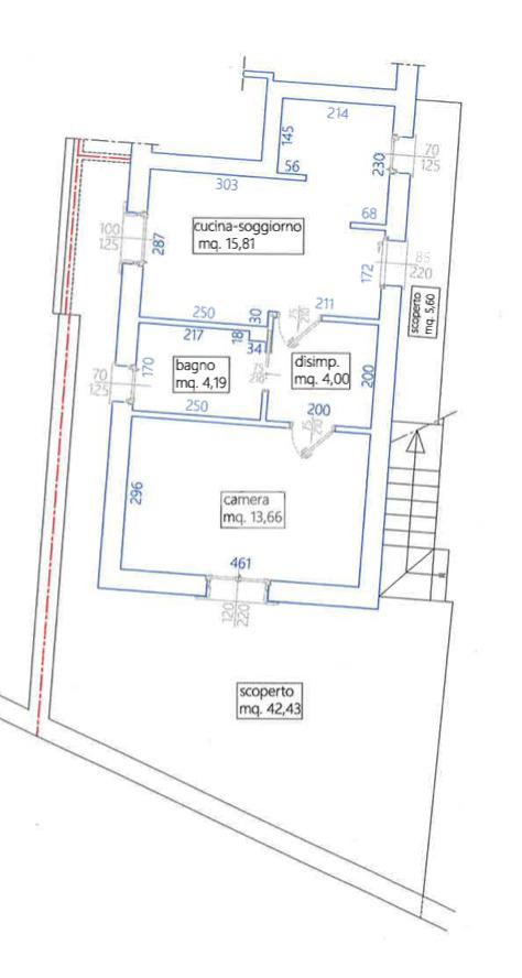
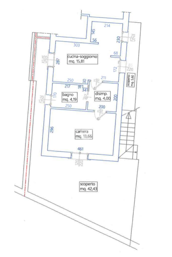
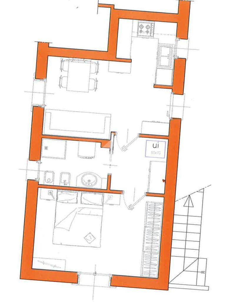
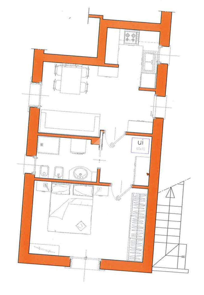
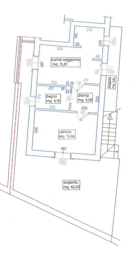
Mini appartamento di nuova costruzione al piano terra con giardino esclusivo, Classe A4 - Detrazioni fiscali fino a 48.000 in prima casa.

In elegante contesto residenziale di sole 10 unità, proponiamo un mini appartamento al piano piano terra con esclusivo giardino di proprietà.

L'abitazione, attualmente in fase di completamento, offre una luminosa zona giorno open space con salotto e cucina, una spaziosa camera matrimoniale ed un bagno finestrato.

Completa la proprietà un posto auto esterno con possibilità di installare una tettoia.

Acquistandolo come prima casa entro novembre, è possibile usufruire di circa 48.000 di detrazioni fiscali.
Soluzione perfetta per chi cerca comfort moderno, indipendenza e vantaggi economici in un contesto tranquillo e ben curato.

Ultime unità disponibili!

Nota importante:

L'immobile viene acquistato direttamente da impresa costruttrice col pagamento dell' IVA all'atto (4% prima casa, 10% seconda casa).

Mostra tutto

Nelle vicinanze

Trasporto pubblico Trasporto pubblico
Colugna:via San Daniele / Patrioti
Colugna:via San Daniele / Patrioti
120 m
Trasporto pubblico
140 m
Ricariche auto elettriche Ricariche auto elettriche
Concessionario Mercedes
1,7 Km
Iper, La grande i - Udine
1,8 Km
Eneldrive Fast Amga - Energia & Servizi Srl
2,0 Km
Best Western la di Moret
2,4 Km
Scuole Scuole
Scuola Primaria Alessandro Volta
340 m
Scuola primaria "Enrico Fruch"
660 m
Università degli Studi di Udine - Polo Scientifico dei Rizzi
1,3 Km
Aula studio Cotonificio
1,4 Km
Dipartimento di Chimica, Fisica e Ambiente - Sezione di Scienze e Tecnologie Chimiche - Uffici
1,4 Km
Farmacia Farmacia
Farmacia Centrale
250 m
Farmacia Alla Fenice Risorta
500 m
Farmacia Comuzzi
1,7 Km
Farmacia Simone dott.ssa Patrizia
1,7 Km
Farmacia del Sole
1,9 Km
Ospedali Ospedali
Ospedale Civile "Santa Maria della Misericordia"
2,4 Km
Pronto Soccorso Pediatrico
2,5 Km
Pronto Soccorso Udine
2,5 Km
Supermercati Supermercati
Hurrà
1,2 Km
Super A&O
1,3 Km
IperConad
1,6 Km
Eurospin
1,7 Km
Eurospar
1,7 Km
Negozi Negozi
Venier
600 m
H&M
1,5 Km
Tuttidì Market
1,5 Km
OVS
1,5 Km
Beltrame & Antoniacomi
2,3 Km
Bar Bar
Osteria Dalia 3.0
600 m
Allo Stadio
630 m
Ayers Rock Café
630 m
Bar
1,1 Km
Bar Neruda
1,2 Km
Ristoranti Ristoranti
Trattoria Nuovo Fiore
550 m
Mensa Rizzi
1,5 Km
Al Fogolar
1,6 Km
Pizzeria Al Faro
1,8 Km
Alla Vedova
2,3 Km
Mostra tutto

Caratteristiche

Rif.:
61101287
Piano:
2 di 2 con ascensore (Piano terra con giardino)
Posti auto:
1
Camere da letto:
1
Arredamento:
Assente
Condizionamento:
Autonomo
Mostra tutto
Prezzo Prezzo
€ 165.000
Rata mutuo Rata mutuo
€ 779 / mese
Spese annue Spese annue
€ 0
Proponi il tuo prezzoProponi il tuo prezzo

Classe Energetica

A4
A4
A4
A4
A4
A4
A4
A4
A4
Anno di costruzione:
2025
Riscaldamento:
Autonomo
Tipo impianto:
A pavimento
Tipo alimentazione:
Altro

Ti interessa visionare l'immobile?

Fissa un appuntamento  Fissa un appuntamento

Richiedi informazioni

Clicca su Leggi per aprire l'informativa
* Questi campi sono obbligatori

Calcola il tuo mutuo

Semplice e senza impegno
Anticipo

( % )
Mutuo

( % )

pochi semplici passi

inserisci i tuoi dati
Questionario completato
Grazie per aver richiesto un appuntamento senza impegno con un nostro Consulente del Credito e Assicurativo.

Hai inserito correttamente tutti i dati necessari e a breve riceverai una e-mail con un link da convalidare per inviare i tuoi dati.
Affiliato
Feletto Srl
Via Udine, 77 33010 Tavagnacco (UD)

Il nostro staff


  • Domeniko Dedushaj
    Affiliato

  • Simone Campagnol
    Collaboratore

  • Eliana Dedushaj
    Coordinatrice

  • Erik Pezzetta
    Collaboratore
Via Udine, 77 33010 Tavagnacco (UD)
Zona: Tavagnacco-Feletto Umberto-Branco-Adegliacco-Molin Nuovo-Cavalicco
Mostra su mappa
Orari: lunedì al venerdì 09:00 alle 13:00 e 15:00 alle 19:30 Sabato dalle 09:30 alle 13:00
Affiliato
Feletto Srl
Via Udine, 77 33010 Tavagnacco (UD)

2025 Tecnocasa Franchising S.p.A. - P. IVA 08365160152 - Via Monte Bianco 60/A 20089 Rozzano (MI). Ogni agenzia ha un proprio titolare ed è autonoma. Privacy policy | Policy utilizzo | Cookie policy