Rustico in vendita

Tricesimo, Via Cividale - Tricesimo - Reana
€ 128.000
7 locali 7 locali
600 Mq 600 Mq
1 bagno 1 bagno

Rustico in vendita

Tricesimo, Via Cividale - Tricesimo - Reana

Descrizione annuncio

Rustico indipendente situato nel comune di Tricesimo, ideale per chi cerca ampi spazi e una soluzione da personalizzare completamente.

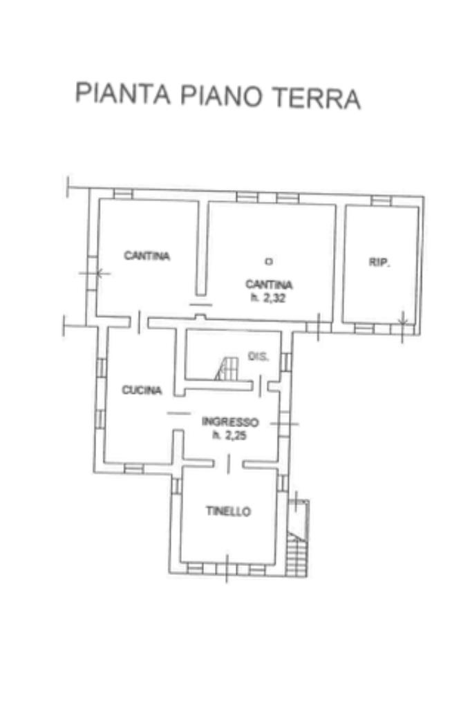
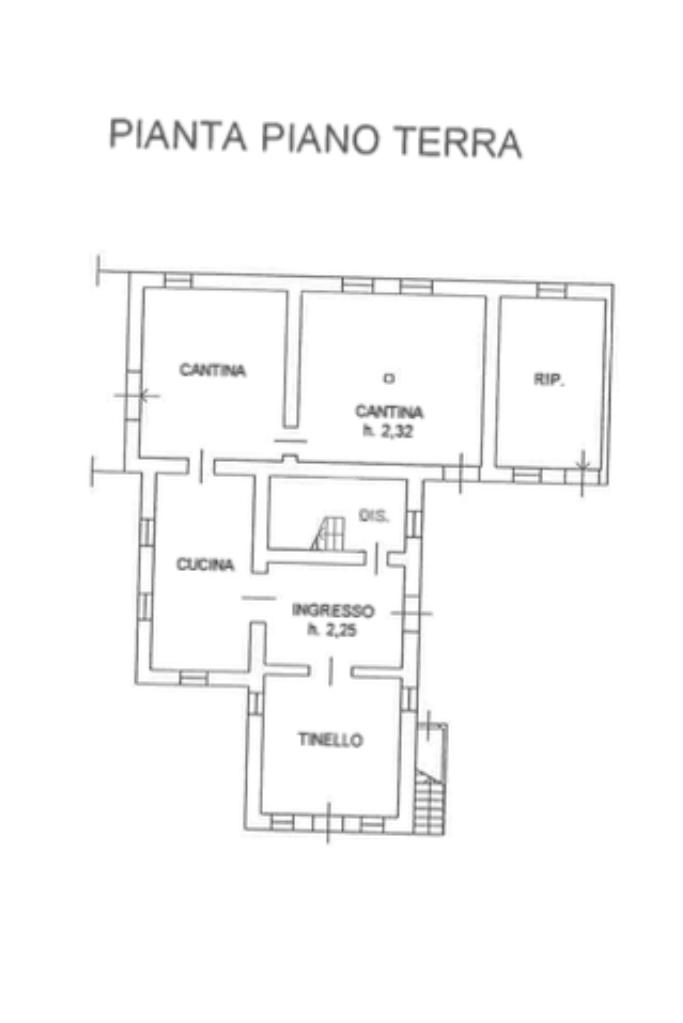
L’immobile si sviluppa su più livelli e offre una distribuzione interna versatile. Al piano terra, dall’ingresso principale, si accede alla zona abitativa composta da cucina, due stanze e tinello, ambienti che possono essere ripensati per creare una zona giorno moderna e funzionale. Dallo stesso ingresso parte la scala interna che conduce al primo piano, dove si sviluppa la zona notte con sei camere e un bagno di servizio. Al secondo piano è presente una spaziosa soffitta.

All’esterno la proprietà dispone di una grande area scoperta, perfetta per realizzare un giardino, una zona relax o altri spazi all’aperto. È presente inoltre un ampio corpo accessorio su due livelli, un tempo adibito a fienili, granai e pollai, che rappresenta un’interessante opportunità per la creazione di una dependance, di ulteriori unità abitative o spazi per attività.

Completa la proprietà un deposito macchinari indipendente, ideale come garage, laboratorio o area di rimessaggio. La soluzione si presenta completamente da ristrutturare, rappresentando un’ottima opportunità per realizzare una residenza su misura, una struttura ricettiva o un progetto di valorizzazione immobiliare, grazie alle importanti metrature e alle molteplici potenzialità.

Mostra tutto

Nelle vicinanze

Trasporto pubblico Trasporto pubblico
Tricesimo - San Pelagio
Tricesimo - San Pelagio
1,1 Km
Tricesimo salita Castello Madonna Missionaria
Tricesimo salita Castello Madonna Missionaria
1,0 Km
Tricesimo via Roma
Tricesimo via Roma
1,3 Km
Scuole Scuole
Scuola Primaria "Giuseppe Ellero"
970 m
Scuole
980 m
Scuola di musica
1,2 Km
Scuola Secondaria "Giovanni XXIII"
2,1 Km
Scuola Secondaria "A. De Gasperi"
2,2 Km
Farmacia Farmacia
Farmacia Giordani
1,3 Km
Farmacia All'Annunziata
1,3 Km
Bernini
1,3 Km
Ospedali Ospedali
ASS4 - Centro territoriale di Tricesimo
1,1 Km
Supermercati Supermercati
Supermercati
1,4 Km
Molino Di Giusto
2,3 Km
LIDL
2,6 Km
CCD
2,7 Km
Negozi Negozi
Panificio
1,3 Km
Panificio Sabot
1,3 Km
Negozi
1,4 Km
La Furlana
2,7 Km
Sorelle Ramonda
2,9 Km
Bar Bar
Ostarie dal Borc
1,4 Km
Bar
1,4 Km
La Bocca di Dante
1,5 Km
Al Torre
2,3 Km
Tal Cjanton
2,5 Km
Ristoranti Ristoranti
Cuel di Barèt
170 m
Pizzeria Saccon
820 m
Al Cjariesâr
830 m
Paulone
1,1 Km
Da Miculan
1,1 Km
Mostra tutto

Caratteristiche

Rif.:
61195848
Piano:
Su più livelli di 3
Totale piani:
3
Box:
1
Posti auto:
3
Terrazzi:
1
Mostra tutto
Prezzo Prezzo
€ 128.000
Rata mutuo Rata mutuo
€ 608 / mese
Spese annue Spese annue
€ 0
Proponi il tuo prezzoProponi il tuo prezzo

Classe Energetica

Questo immobile è esente da classe energetica
Anno di costruzione:
1800
Riscaldamento:
Autonomo
Tipo impianto:
A stufa
Tipo alimentazione:
Altro

Ti interessa visionare l'immobile?

Fissa un appuntamento  Fissa un appuntamento

Richiedi informazioni

Clicca su Leggi per aprire l'informativa
* Questi campi sono obbligatori

Calcola il tuo mutuo

Semplice e senza impegno
Anticipo

( % )
Mutuo

( % )

pochi semplici passi

inserisci i tuoi dati
Questionario completato
Grazie per aver richiesto un appuntamento senza impegno con un nostro Consulente del Credito e Assicurativo.

Hai inserito correttamente tutti i dati necessari e a breve riceverai una e-mail con un link da convalidare per inviare i tuoi dati.
Affiliato
Feletto Srl
Via Udine, 77 33010 Tavagnacco (UD)

Il nostro staff


  • Domeniko Dedushaj
    Affiliato

  • Simone Campagnol
    Collaboratore

  • Eliana Dedushaj
    Coordinatrice

  • Federico Lizzi
    Collaboratore

  • Erik Pezzetta
    Collaboratore
Via Udine, 77 33010 Tavagnacco (UD)
Zona: Tavagnacco-Feletto Umberto-Branco-Adegliacco-Molin Nuovo-Cavalicco
Mostra su mappa
Orari: lunedì al venerdì 09:00 alle 13:00 e 15:00 alle 19:30 Sabato dalle 09:30 alle 13:00
Affiliato
Feletto Srl
Via Udine, 77 33010 Tavagnacco (UD)

2026 Tecnocasa Franchising S.p.A. - P. IVA 08365160152 - Via Monte Bianco 60/A 20089 Rozzano (MI). Ogni agenzia ha un proprio titolare ed è autonoma. Privacy policy | Policy utilizzo | Cookie policy